飞清网旗下酒店交易垂直服务平台
用户协议
隐私政策
酒店交易网官方网址
酒店交易网-信息接受
酒店交易网-官方微信小程序
酒店交易网-官方微信公众号
关于我们-酒店交易网
联系我们-酒店交易网
信息
信息
微官网
头条
云展
电话本
搜 索
点击登录
发布信息
首页
酒店转让
酒店出租
在建酒店
酒店出售
酒店升级
酒店官网
酒店配套
微官网开通
酒店头条
飞清网
首页
>
酒店租售
>
宁波余姚一站式商业综合体地标酒店,准四星高标打造 I 项目可租/可售
宁波余姚一站式商业综合体地标酒店,准四星高标打造 I 项目可租/可售
浏览:68478 刷新:2026-03-17 15:54
投诉
出租价 :
面议
停车位数量 :
面议个
物业管理费 :
面议万/月
物业租金 :
面议万/月
合同年限 :
15年
建筑面积 :
22138平
独栋/楼层 :
独栋
项目类型 :
商业酒店型
地区 :
浙江省 宁波市
飞清网 APP同步展示
项目位于余姚城区北部,南临晋涵路,东靠迎霞北路,距离余姚、慈溪市中心约12公里、余姚北站约8公里、杭州湾大桥约20公里、宁波栎社国际机场约65公里。辐射余慈约88个社区、近30万人口。产业集聚裘皮、五金机械、家用电器、塑料磨具等7000余家企业。近距离拥有全球最大的裘皮服装服饰交易集散地。
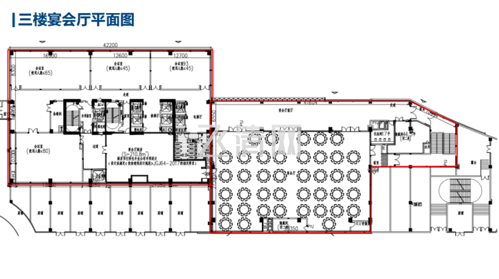
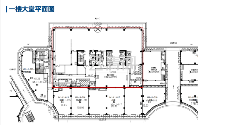
酒店按准四星酒店规划布局,总建筑面积:20001㎡,其中地上面积:17288㎡,地下面积:2713㎡。269间客房,规划有近700㎡的无柱宴会厅、大小会议室4间、全日餐厅、健身泳池等配套区域。
联系人:
张灿
联系电话:
139****8805
微信扫一扫查看电话
推荐信息
置顶
城区盈利酒店式公寓整体转让 剩余12年长期合同 客源稳定接手直接营业...
酒店租售/酒店转让
广东省/清远市
置顶
东莞市石碣镇曼本酒店转让
生意转让/生意转让
广东省/东莞市
9图
置顶
出门就是步行街 昆明风景区酒店及餐饮转让
酒店租售/酒店转让
云南省/昆明市
置顶
四川富螺湾酒店出租
酒店租售/酒店出租
四川省/遂宁市
置顶
山东日照东辰大酒店出租
酒店租售/酒店出租
山东省/日照市
4图
置顶
台昆国际酒店四星级酒店转让
酒店租售/酒店转让
浙江省/金华市
7图
置顶
新疆阿勒泰布尔津县酒店出售
酒店租售/酒店出售
新疆维吾尔自治区/阿勒泰地区
置顶
绵阳万达公寓民宿酒店
酒店租售/酒店转让
四川省/绵阳市
5图
置顶
云南酒店主体出租
酒店租售/酒店出租
云南省/德宏傣族景颇族自治州
5图
置顶
急售龙门古镇精装修民宿,有工商执照直接过户,消防未备案。...
生意转让/生意转让
浙江省/杭州市
查看更多信息 >
发布者
馨居达人
Ta的主页
私信
认证资质
企业认证
个人认证
实地认证
退役军人
已缴保证金
中布联认证
ISO9001
ISO14001
ISO45001
服务认证
联系客服
私信
返回顶部
私信
关闭