酒店信息网
[
切换站点
]
热门站点
飞清网
飞清网介绍
联系我们
权限明细表
个人信息共享清单
用户协议
隐私政策
账号注销及删除
飞清网服务号
飞清网APP订阅号
关于我们
分类信息
分类信息
同城好店
头条文章
搜 索
点击登录
发布信息
首页
商家官网
飞清头条
酒店租售
生意转让
土地租售
纺织信息
公寓租售
仓库租售
厂房租售
写字楼交易
商铺租售
求租求购
首页
>
酒店租售
>
成都酒店招租
成都酒店招租
浏览:2233 刷新:2026-02-27 18:55
出租价 :
35元含税含物业
停车位数量 :
200个
物业租金 :
255000万/月
合同年限 :
10年
建筑面积 :
7300平
独栋/楼层 :
独栋
项目类型 :
商业酒店型
地区 :
四川省 成都市
飞清网 APP同步展示
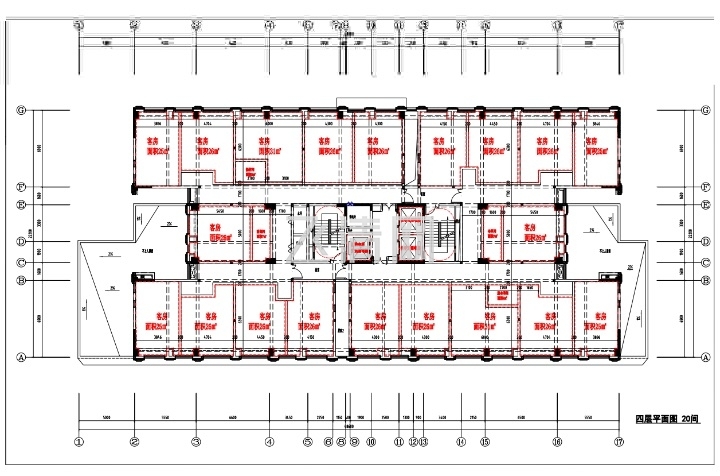
天府五街附近独栋共10层总面积是7300平米
其中1楼商铺面积622平米
2楼商铺面积608平米。1、2楼层高6.1米。上面层高是3米,租金35含两层商铺 排房可排150间左右
联系人:
刘先生
联系电话:
134****8993
微信扫一扫查看电话
推荐信息
置顶
洛阳市老君山景区内精品民宿转让
酒店租售/酒店转让
河南省/洛阳市
旅途梦享家99726
·
昨天 22:53
7图
置顶
苏州2600平木渎酒店转让
酒店租售/酒店转让
江苏省/苏州市
旅途梦享家99720
·
昨天 10:55
5图
置顶
上海国展中心附近酒店转让转租
酒店租售/酒店转让
上海市/闵行区
飞清网
·
3 天前
5图
置顶
江苏苏州6.9万平黄金地段酒店
酒店租售/酒店出售
江苏省/苏州市
飞清网
·
3 天前
3图
置顶
海南陵水海梦国际大酒店出售
酒店租售/酒店转让
海南省/陵水黎族自治县
蔡亚云~Lucy
·
3 天前
3图
置顶
贵州安顺景区2700平酒店出售
酒店租售/酒店出售
贵州省/安顺市
飞清网
·
3 天前
4图
置顶
重庆九龙坡区单体酒店转让
酒店租售/酒店转让
重庆市/九龙坡区
飞清网
·
3 天前
9图
置顶
河南省洛阳市老城区营业中酒店转让,位置很好,非诚勿扰!...
酒店租售/酒店转让
河南省/洛阳市
飞清网
·
4 天前
9图
置顶
杭州临安高星酒店,城市微度假栖息地 I 项目可租/可售...
酒店租售/酒店出租
浙江省/杭州市
飞清网
·
4 天前
9图
置顶
宁波余姚一站式商业综合体地标酒店,准四星高标打造 I 项目可租/可售...
酒店租售/酒店出租
浙江省/宁波市
飞清网
·
4 天前
查看更多信息 >
发布者
飞清网
Ta的主页
认证资质
企业认证
个人认证
联系客服
返回顶部